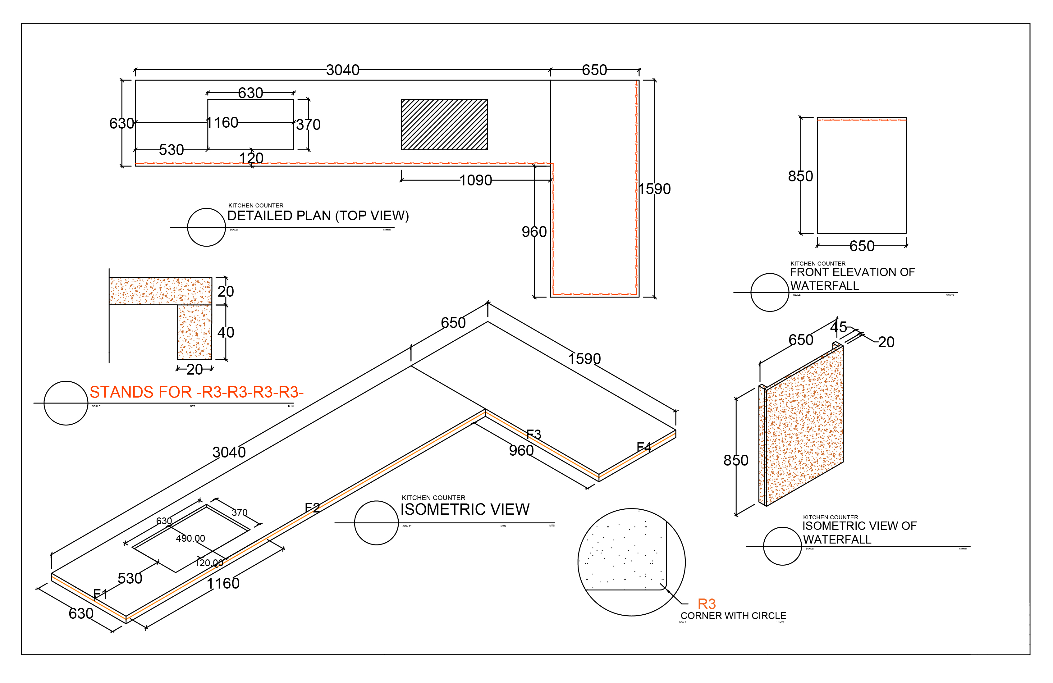
Planning is an integral part of interior design. Space planning begins at the architectural level. If you want a room to be of a specific size it has to be built with those dimensions.
Quartz countertops are easy to clean and require less maintenance than other natural stone, quartz is non-porous so
its resistant to staining is much better than granite, marble and concrete. Quartz is high-traction surface this means it becomes less slippery than other stone. Perfect for bathroom.
With our skilled Architects together with our cutting edge technology making your design is not a problem for us.
The countertop edge will enhance the style of any project
by adding an architectural detail to the kitchen or bathroom.
Standard profile such as the “Double Eased” and
“Bullnose” are timeless choices that will coordinate with
most styles. More decorative profiles such as “Ogee” and
“Dupont” gives a refined look perfect for classic or traditional
spaces. Whereas the “Miter” or “Laminated Double Eased”
edges reflect a modern style. Laminated edges are two
layers of stone applied and profifiled together to make the
slab look thicker and add more detail.
We have a highly skilled team of fabricators and state of the
art machinery that can customize your project.